Entrust and Grand Corners Availabilities

 
 

Leasing INFORMATION: The Mission Companies

ryan Cropper 713-782-8550

 

Grand corners suite 150

Available office space with 2,774 NRA including two conference rooms, executive office, three offices, break area, copy area, reception, and a large open work area.

 
 

COMING LATER THIS YEAR

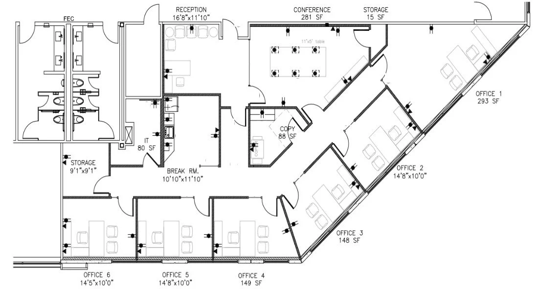
Office space with 2,866 NRA including a conference rooms, executive office, five offices, break room, copy room, large reception, and a couple storage rooms.